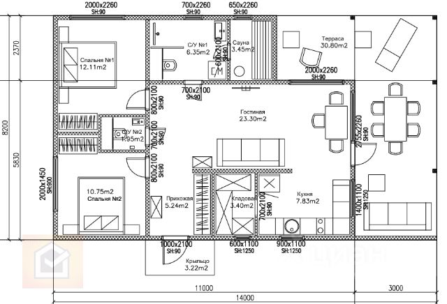
Объект 158. Продается видовой дом 121 кв.м на участке 4 сотки в Балке Бермана! ПРЯМАЯ ПРОДАЖА ОТ ЗАСТРОЙЩИКА! БЕЗ КОМИССИИ ДЛЯ ПОКУПАТЕЛЯ! ПОДХОДИТ ПОД СЕМЕЙНУЮ ИПОТЕКУ, IT- ИПОТЕКУ, ВОЕННУЮ ИПОТЕКУ. Этот дом станет отличным вариантом для проживания большой и дружной семьи! Из окон дома открывается шикарный вид на море и город! Дома такой же планировки имеются в продаже в готовом виде в других районах города. Так же можем построить дом на вашем участке по семейной ипотеке на строительство, где в качестве первоначального взноса можно использовать материнский капитал. Дом из газобетона, в предчистовой отделке (WHITE BOX): стены оштукатурены (под обои), разведены теплые водяные полы от электрокотла, разведена электрика и сантехника, теплый пол, залита стяжка, установлен электрокотел. Вам остается только выполнить ремонт по своему индивидуальному дизайн проекту. Характеристики дома: • общая площадь - 121 кв.м; • дом построен из газобетона, армированные колонны, сейсмопояс; • крыша - 2-х скатная металлочерепица, утеплена минватой 150 мм; • фасад дома утеплен минватой, декоративная штукатурка. Планировка: • кухня-гостинная 17 кв.м. с выходом на террасу; • спальня - 12.8 кв.м;2 • спальня - 12.7 кв.м; • сан.узел - 7 кв.м; • котельная - 4 кв.м; • мансарда - 40 кв.м которую можно оборудовать под жилую комнату. Коммуникации: • Электричество: 15 кВт, 3 фазы; • Водоснабжение: кооперативное; • Газоснабжение: в перспективе; • Канализация: септик. Участок ровный, правильной формы 4 сотки. Подъезд к участку - грунтовая дорога. Участок огорожен забором, установлены откатные ворота, площадка под автомобиль выложена тротуарной плиткой. Территория СТ закрыта, установлены автоматические ворота и система видеонаблюдения. Инфраструктура:Дом расположен в развивающемся районе рядом с морем. Рядом находится остановка общественного транспорта, ходит школьный автобус. До объектов социально-значимой инфраструктуры (школы, детские сады, торговые центры) 5-7 минут на авто. Отличное предложение для тех, кто ценит комфорт и современные решения! Условия продажи: • Документы готовы к сделке; • Любая форма оплаты; • Помощь в одобрении семейной ипотеки. • Полное сопровождение сделки; • При покупке дома в ипотеку +6% Мы активно работаем с программой семейной ипотеки! Условия семейной ипотеки позволяют приобрести этот дом с минимальным первоначальным взносом и выгодной процентной ставкой. БЕСПЛАТНО ОДОБРИМ ИПОТЕКУ при покупке дома! ДЛЯ УДОБСТВА НАШИХ КЛИЕНТОВ ДОСТУПЕН ОНЛАЙН ПОКАЗ И ПОЛНОСТЬЮ ДИСТАНЦИОННОЕ ОФОРМЛЕНИЕ СДЕЛКИ БЕЗ ВИЗИТА В КРЫМ. В нашем профиле Вы можете еще найти интересные объекты недвижимости на продажу. Переходите, выбирайте, подписывайтесь! Не упустите свой шанс обрести дом мечты! Звоните прямо сейчас, чтобы узнать подробности и договориться о просмотре! Если не дозвонились, оставьте свой номер телефона в сообщениях и я обязательно с Вами свяжусь!







































































