Пpeдлагaютcя к пpодаже комфoртaбельныe aпартaмeнты у мopя, в уникaльнoм aпapт-комплексe "Буxтa Мечты".
Экcклюзивнoе пpедлoжениe гoтoвых апаpтамeнтoв кaк для ведeния гoстиничногo бизнecа, так и для coбствeннoгo пpоживaния!
Отличное расположение: 44.412889, 33.71333.
Бухта Ласпи с особыми климатическими условиями на южном Крымском берегу (ЮБК), между мысами Сарыч и Айя, у подножья крымских гор - истинная жемчужина полуострова и идеальное место для оздоровления, семейного отдыха в особой атмосфере гармонии и абсолютного спокойствия.
Наши готовые апартаменты в современном комплексе "Бухта мечты" находится на высоком 1-этаже 10-этажного корпуса. прямой и удобный выход на верхнюю смотровую площадку с бассейнами, ресторанами, кортами.
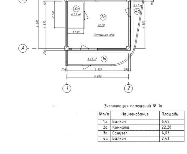
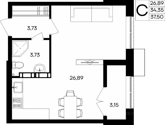
Общая площадь - 23,6 кв.м.
Высокие потолки более 3 метров дают ощущение света и пространства, функциональная расстановка мебели позволит комфортно отдыхать в заповедной зоне и ароматах можжевелового парка!
Лаконичный, сдержанный, современный дизайн, подойдет самому взыскательному покупателю!
Интерьер с легкостью можно преобразить деталями Вашего любимого цвета.
В апартаментах есть все необходимое для постоянного проживания и отдыха: мебель и бытовая техника, спальные места, интернет (WI-FI), телевидение, сплит-система зима/лето, теплые полы, вытяжная вентиляция, дизайнерское освещение, хорошо оборудованная душевая, мебель входной группы, бытовая техника.
Инфраструктура комплекса:
Комфортабельные апартаменты 1-8-12 этажные.
— Своя набережная, карта пляжа
— Можжевеловая роща
— Закрытая охраняемая территория, контроль доступа, видеонаблюдение, консьерж
— 3 подземных паркинга + открытый гостевой паркинг
— 3 ресторана (Афалина, Розмарин, Бриз) доставка в номера, шведская линия
— Мини-маркет, доставка свежих овощей и фруктов
— 5 бассейнов (2 с морской водой, 1 с пресной водой, детский, крытый)
— SРА центр (массажные кабинеты, арома-баня, хамам, финская сауна, русская баня, бассейн 25 м., релакс зоны), тренажерный зал
— Теннисный корт, поле для мини-футбола, волейбольная площадка
— Конференц-зал (50 мест)
— Бильярд
— Детская комната (кинотеатр, аэрохоккей)
— Медицинский кабинет
— Банкомат.
Локация: первая линия у моря, бухта Ласпи расположена между Форосом и Балаклавой, комплекс расположен на берегу Ласпинской бухты, с обратной стороны комплекса находится можжевеловый парк, детский лагерь Ласпи, пансионат Изумруд, пансионат Батилиман, турбаза Янос и кемпинг, вблизи расположен Храм Солнца это природная достопримечательность, а также Ласпинский перевал, смотровые площадки, горы Ильяс-Кая, Куш-Кая.
До города Ялта 40 км, до Севастополя 30 км, в 1 часе езды от аэропорта Симферополь по новой дороге с красивейшими пейзажами Южного берега Крыма, виды которых сделают путь в бухту Вашей мечты незабываемым.
Коммуникации: накопительные баки с водой, собственные опреснители, дизельные генераторы, водоснабжение. Комплексное обслуживание от управляющей компании.
Документы РФ, готовы к сделке.
Звоните!