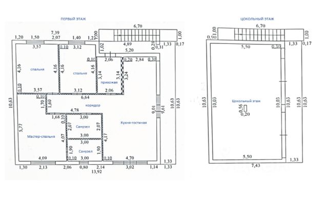
Арт. 91538967. Идеальное пространство для вашей семьи: большой дом с возможностью создать отдельное жилье для родителей (СНТ "Эра-1") Вам не нужно будет думать о пристройках — в этом доме уже есть полноценный цокольный этаж, который можно использовать как уютную студию для старшего поколения или отдельную зону для отдыха и хобби. ------------------------------ ОСНОВНЫЕ ХАРАКТЕРИСТИКИ: Общая площадь: 211 м². Полноценный цокольный этаж общей плоащадью 55 м2. Технически предусмотрен под комфортабельный гараж и спортзал, но легко трансформируется в уютную студию для проживания родителей или детей-подростков. Все зависит от ваших потребностей! 1-й этаж: Продуманное зонирование для комфортной жизни. Здесь расположены: компактная прихожая, просторная кухня-гостиная (идеальное место для семейных вечеров и приема гостей), мастер-спальня с собственным санузлом, две дополнительные спальни и большой гостевой санузел. ------------------------------ КОНСТРУКТИВ И КАЧЕСТВО: Фундамент - монолит ж/б Каркас монолитный ж/б выполнен с соблюеднием всех строительных норм с учетом сейсмики 8 баллов Стены: качественный газоблок. Окна: панорамные, с наружной и внутренней ламинацией (стильно и тепло). Кровля: надежные качественные материалы. Коммуникации: подключен свет, проведена вода, установлен септик. ------------------------------ УЧАСТОК И РАСПОЛОЖЕНИЕ: Участок 6 ,3 сотки правильной прямоугольной формы. Идеально подойдет для красивых ландшафтных решений. Удобства: асфальтированный заезд к самому участку (чисто и сухо в любую погоду). Локация: СНТ "Эра-1". Панорамные окна первого этажа выходят во двор и на зону отдыха — вы сможете любоваться своим садом, не выходя из дома.













































































