Мы используем куки-файлы. Соглашение об использовании
Только на Циан

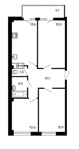
Продается 3-комн. квартира, 75,6 м²

Общая площадь75,6 м²
Этаж1 из 9
Год сдачи2027
ДомНе сдан
ОтделкаНет информации
Продаётся 3-комнатная квартира в строящемся доме (8 этап. Дом 2), срок сдачи: I-кв. 2027, общей площадью 75.6 кв.м., на 1 этаже. Представляем Вам новый уникальный проект, получивший название - ЖК "Доброгород"! Новый крупнейший микрорайон, который будет построен в рамках проекта по реновации промышленных территорий располагается на улице Токарева. Компания "ИнтерСтрой" стала первой в Севастополе и пятой в России, реализующей данный проект. Какие ассоциации у нас возникают при слове "дом"? Теплота и уют, добро и любовь, забота и поддержка, вкусный чай и дружеские посиделки с друзьями, которые приходят к нам в гости. Звонкий смех и позитивные эмоции! Дом - это то место, Впервые наши покупатели смогут приобрести квартиры студии- самый востребованный в настоящий момент сегмент на рынке. Данный вид планировок сейчас не может предложить ни один застройщик в Севастополе. Жильё в новом микрорайоне станет доступнее для молодых семей. Кроме того, покупателям будут представлены просторные 2-3 комнатные квартиры с очень интересными и оригинальными планировками, дающими простор для воплощения в жизнь интерьера вашей мечты! За счёт собственных средств будет реализовано строительство детского сада и начальной школы. Мы позаботимся о новоселах "Доброгорода" - для комфортной жизни на первых этажах домов будут функционировать детские кружки, студии танцев, магазины, аптеки, стоматологии, салоны красоты. Важно! В Вашем новом доме будет действовать принцип "двор без машин": парковки будут располагаться исключительно по периметру домов, внутри дворового пространства будет расположена пешеходная зона для спокойных и безопасных прогулок. Общая жилая площадь ЖК "Доброгород" составит около 100 тысяч квадратных метров или 1979 квартир. ЖК "Доброгород" - не просто новый микрорайон. Это особая среда с цельной имиджевой составляющей, специально разработанным дизайном и цветовой гаммой. "Доброгород" - это семейный микрорайон с современными, теплыми и комфортными домами, идеальное место для жизни с семьей и встреч с друзьями. куда хочется возвращаться!

О квартире

Тип жилья

Новостройка

Общая площадь

75,6 м²

Высота потолков

2,72 м

Отделка

Нет информации

О доме

Тип дома

Монолитно-кирпичный

Пандус

Есть

Понравилась квартира — узнайте о ней больше

Застройщик ответит на все вопросы

О ЖК «Доброгород»

  • Сдача комплекса
    Сдача в 1 кв. 2027, есть сданные
  • Застройщик
    ИнтерСтрой
  • Класс
    Комфорт
  • Тип дома
    Монолитно-кирпичный
  • Парковка
    Гостевая
  • Отделка
    -
  • Тип комплекса
    Жилой комплекс
Похоже на то, что вы ищете?

Особенности жилого комплекса

  • Парковка

  • Внутренний двор

  • Архитектура

  • Входная группа

Подробнее о жилом комплексе

Акции в ЖК «Доброгород»

Узнайте про персональные условия и дополнительные скидки при покупке квартиры у застройщика

Материнский капитал

Военная ипотека

Ипотечный калькулятор
  • Базовая
  • Семейная
  • ИТ-ипотека
  • 20%
  • 30%
  • 40%
  • 50%
лет
  • 10 лет
  • 20 лет
  • 30 лет
Загружаем предложения от застройщика и банков

Расположение

Корпус проверен наш.дом.рф
Обновлено 15 апреля 2026
  • Нет в реестре проблемных объектов
  • Застройщик не банкрот
  • Есть эскроу счёт
  • Актуальные фото стройки

Ещё квартиры в жилом комплексе

28 квартир в продаже · Сдача в 1 кв. 2027, есть сданные
Агентство недвижимости
Магазин новостроек
  • 5 лет 2 месяца на Циане
  • 15 120 000 ₽
    Цена за метр
    200 000 ₽/м²
    Условия сделки
    долевое участие (214-ФЗ)
    Агентство недвижимости
    Магазин новостроек