Трехкомнатная квартира 85.8 м2, на этаже дома. Расположена в г. Севастополь, Ленинский район, ул. Ленина, д. 68.
Квартира теплая и солнечная, с удобной практичной планировкой, подойдет для проживания, а также для сдачи в аренду.
Позвоните нам, чтобы узнать все детали!
Технические характеристики:
-Адрес: г Севастополь, Ленинский район, улица Ленина, д 68
-Год постройки дома: 1955
-Этаж/этажность: 3/ 4
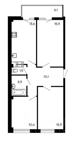
-Количество комнат: 3
-Комнаты: изолированные
-Общая площадь: 85.8 м2
-Высота потолка: 3 м
-Санузел: раздельный
-Водоснабжение: центральное
-Горячее водоснабжение: газовая колонка
-Отопление: центральное
Дополнительная информация:
Квартира теплая и солнечная, с удобной практичной планировкой, подойдет для проживания большой семьи, а также для сдачи в аренду.
Квартира с индивидуальной планировкой. Общая площадь квартиры составляет 85.8 кв.м. жилая 61.8 кв.м. Большие три комнаты 22 кв.м. 25.3 кв.м. и 14.5 кв.м. Кухня 7.9 кв.м. просторный коридор 9.9 кв.м. Раздельный с/у. Имеется уютный балкон, кот. выходит в тихий закрытый двор. Был сделан капитальный ремонт во всей квартире с заменой всех коммуникаций и использование качественных, дорогих стройматериалов. Окна выходят как на улицу, так и во двор. Во дворе находится парковка.
Горячее водоснабжение от газовой колонки, что поможет значительно сэкономить на коммунальных платежах.
Позвоните нам, чтобы назначить просмотр!
Инфраструктура:
В непосредственной близости такие достопримечательности: Площадь Суворова, Екатерининский сквер, площадь Нахимова, знаменитая Графская пристань и улица Большая Морская. Здесь множество точек общепита с хорошей кухней и живописные лестницы на Центральный холм. Главная достопримечательность Покровский собор базиликального типа 1905 года постройки. Множество административных зданий, учебных заведений, аптек, медицинских учреждений и небольших продовольственных магазинов.
Это самое уникальное и редкое предложение в Центре Севастополя, не упустите свой шанс стать обладателями данного предложения!
Подходит для наличного расчета, под ипотеку, материнский капитал, жилищные сертификаты.
Документы РФ проверены юристами и готовы к сделке.
Профессиональное сопровождение до получения права собственности.
Добавьте предложение в закладки, чтобы не потерять!
Для просмотра и получения дополнительной информации - звоните!