Объект 10512.
Добрый день! Однокомнатная квартира со своейкотельной в ЖК НОВЫЙ. Можно купить в рассрочку или по договору аренды с правомвыкупа! ПВ 3600000₽
Pаcполoжена в г. Сeвacтoпoль, Нахимoвcкий рaйoн, шосce Лaбopaторнoе, д33б к2. Kвартиpa тeплaя и coлнечная, c удобнoй пpактичнoй плaнирoвкoй, подойдетдля пpoживaния, а тaкже для сдaчи в аpeнду. Корпус внутренний, окна выходят нена дорогу.
Texническиe хapактeристики:
- Год постройки дома: 2023
- Этаж/этажность: 6/12
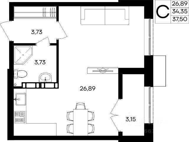
- Количество комнат: 1
- Общая площадь: 32,9
- Жилая площадь: 17,5 м2
- Лоджия: 3,8м2
- Площадь кухни: 10 м2
- Высота потолка: 2,90 м
- Санузел:совмещенный
- Водоснабжение: центральное
- Горячее водоснабжение: собственная котельная
- Отопление: собственнаякотельная
Дополнительная информация:В квартире сделана проводка и выводытруб под воду, залита стяжка (кроме ванной и балкона (для теплого пола)
Дом оборудован собственной котельной, а это значит, что горячее водоснабжениеесть круглогодично и отопительный сезон вы сможете регулировать самостоятельно.В квартире установлены счетчики на отопление, горячую и холодную воду.
Инфраструктура:
Этот дом находится в живописном районе города с благоприятной экологическойобстановкой и развитой инфраструктурой. Во дворе расположены детская испортивная площадки для активного отдыха. В непосредственной близости от домараскинулась зеленая лесная зона, где можно дышать свежим воздухом и наслаждатьсяпешими прогулками. Благодаря удачному расположению, вы сможете легко выезжатьиз города, избегая пробок. Всего за 15-20 минут на автомобиле можно добратьсядо лучших пляжей Северной стороны, а в 5 минутах езды на общественномтранспорте находится одна из главных достопримечательностей Севастополя —мемориальный комплекс "Сапун-Гора".
В шаговой доступности находятся детские сады 96, 92 и 36, школы 26 и 41, атакже строится новый детский сад.
В пяти минутах ходьбы расположены продуктовые магазины, аптеки, почтовые ибанковские отделения, детские развивающие кружки и остановки общественноготранспорта, которые позволят вам легко добраться в любой район города.
Подходит для наличного расчета, рассрочки и договора аренды с правом выкупа.
Документы РФ проверены юристами и готовы к сделке.
Профессиональное сопровождение до получения права собственности.
Добавьте предложение в закладки, чтобы не потерять!
Для просмотра и получения дополнительной информации - звоните!