Однокомнатная квартира 35 м2, на 9/9 этаже дома. Объект расположен по адресу : г. Севастополь, Нахимовский район, улица Генерала Мельника, д 11а к 1.
Данный объект подойдет как для собственного проживания, так и в качестве высокорентабельной инвестиции.
Позвоните нам, чтобы узнать все детали!
Технические характеристики:
-Адрес: г. Севастополь, Нахимовский район, ул. Генерала Мельника, д. 11а к1
-Год постройки дома: 2021
-Этаж/этажность: 9/9
-Количество комнат: 1
-Комнаты: изолированные
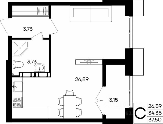
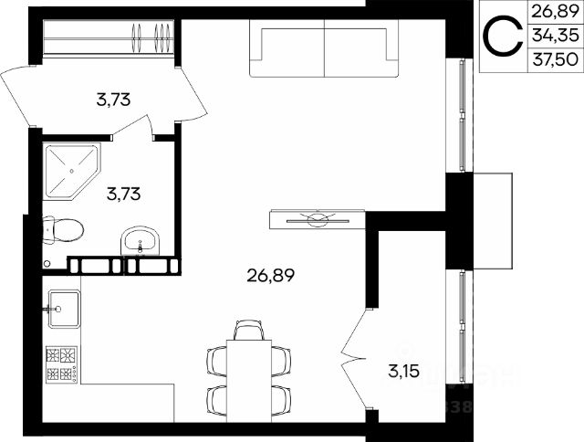
-Общая площадь: 35 м2
-Жилая площадь: 14,75 м2
-Комната: 14,75 м2
-Площадь кухни: 8,92 м2
-Высота потолка: 2,72 м
-Санузел: совмещенный
-Водоснабжение: центральное
-Горячее водоснабжение: АГВ
-Отопление: АГВ
Дополнительная информация:
Общая площадь квартиры с учетом балкона - 35 м2. Комната - 14,75 м2. Кухня - 8,92 м2. с выходом на застекленный балкон - 3,84 м2. Коридор - 4,47 м2. Санузел совмещенный - 3,23 м2.
В квартире сделан дорогой качественный ремонт. Квартира оборудована современной техникой: холодильник, микроволновая печь, стиральная машина, кондиционер, телевизор, встроенные посудомоечная машина, духовой шкаф, варочная поверхность. В комнате большой двуспальный диван, встроенный шкаф. Из окон квартиры открывается потрясающий вид на город. Квартира расположена в середине дома, теплая и солнечная.
Закрытая территория жилого комплекса оборудована детской и спортивной площадками. Вокруг дома находится большое количество парковочных мест, гаражи.
Позвоните нам, чтобы назначить просмотр!
Инфраструктура:
Рядом с жилым комплексом "Горизонт" находятся все необходимые объекты инфраструктуры. Буквально в соседнем дворе находится ближайшая школа. Также в пешей доступности есть гимназия, поликлиники, детские сады, фермерский рынок, торговые центры, аптеки, кофейни, салон красоты, пункты выдачи WB и Ozon, фитнес центр.
Остановка общественного транспорта находится в 5 минутах ходьбы от дома. Удобное расположение ЖК "Горизонт" позволит вам без труда добраться в любой район города. Менее десяти минут займет дорога от дома в эко-парк семейного досуга Лукоморье или в обновленный сквер и на бастионы знаменитого Малахова Кургана. Вы можете посетить с детьми зоопарк, сходить на пикник в любимое севастопольцами место отдыха - Ушакову балку с прилегающим пляжем. Поблизости находится современный спортивный комплекс с стадионом, красивейший собор Александра Невского, Московский государственный университет — с спортивным комплексом и бассейном.
Подходит для наличного расчета, под ипотеку, материнский капитал, жилищные сертификаты.
Документы РФ проверены юристами и готовы к сделке.
Профессиональное сопровождение до получения права собственности.
Добавьте предложение в закладки, чтобы не потерять!
Для просмотра и получения дополнительной информации - звоните!