Арт. 89889750. Вашему вниманию уникальное предложение!
Просторный, светлый дом на участке в городе Севастополя, Любимовка ул. 2 линия
Любимовка - микрорайон на севере Севастополя , расположенный на берегу Черного моря .
Дом :
Зарегистрирован , с возможностью прописки.
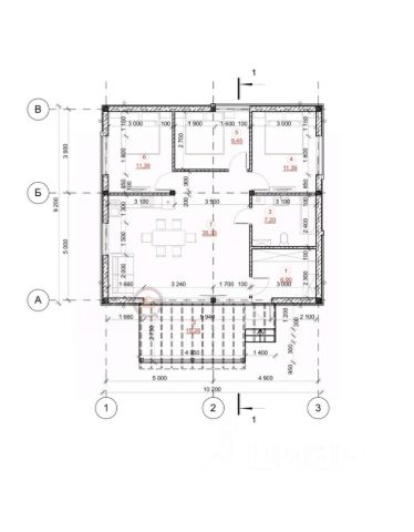
Общей площадью 79.5 кв. м.
Построен 2024 г.
Дом построен из газобетонных блоков.
Фундамент - монолитная плита.
Кровля - двухскатная металочерепица.
Выполнен качественный ремонт.
Дом одноэтажный.
Планировка;
Входная группа (4.82 кв.м и 1.8 кв.м)
Кухня-гостиная ( 32.8 кв.м)
3 Комнаты(9.1 кв.м.,9.1 кв.м. и 9.6 кв.м.)
Санузел - (4.1 кв.м) ( совмещенный)
Комната - СВОБОДНОГО НАЗНАЧЕНИЯ( 5.6 кв.м.).(можно использовать как котельная и для использования хранения бытовых вещей)
На этаже под крышей (доступ по лестнице )есть помещение свободной планировки, которое можно обустроить под любые нужды.
Высота потолков - 3 м.
Для строительства и отделки дома использовались материалы премиального сигмента.
Предусмотрены три отдельных входа для удобства эксплуатации.
В дальнейшей перспективе предусматривалось строительство террасы , охватывающей дом на наполовину : такое решение позволит в будущем использовать ее как дополнительное помещение
Построен по эксклюзивному индивидуальному проекту.
Этот уютный дом уже полностью готов принять дружную семью и стать для нее настоящим очагом тепла и счастья.
Участок:
5 сот
Категория земель - земли населенных пунктов.
Вид разрешенного использования -для индувидуального жилищного строительства.
Форма собственности - частная.
Участок ровный , свободный от застройки: идеальная площадка для реализации любых идей архитектурного и ландшафтного дизайна.
Вокруг - благоустроенные участки с домами , где люди живут круглогодично.
Коммуникации:
- вода - своя скважина.( в ближайшем время подключение городскому водопроводу)
- электричество 15 кВт .
- септик (3 кольца)
- отопление - теплые полы смонтированы по всему дому.
- газ , возможно подключение.
Отличные подъездные пути.
Инфраструктура:
Микрорайон Любимовка в Севастополе обладает развитой инфраструктурой, ориентированной преимущественно на пляжный отдых и туризм.
Основные элементы инфраструктуры включают:
Транспорт и связь
Автобусное сообщение: до Любимовки можно добраться на автобусах 36, 42, 45, 51, 52 от Северной стороны Севастополя (площадь Захарова).
Катерное сообщение: от Графской пристани в Южной бухте до Северной стороны, откуда далее на автобусе.
Жильё
Пансионаты и базы отдыха: "Любоморье", "Песчаный берег", "Альбатрос", "Горизонт" и другие.
Пляжи
Центральный пляж: благоустроен, есть шезлонги, навесы, раздевалки, душевые, туалеты, прокат катамаранов и "бананов".
Гарнизонный пляж: менее благоустроен, но также оборудован раздевалками и туалетами.
Дикие пляжи: включая нудистский участок у устья реки Бельбек.
Лагуна Святого Валентина: искусственно созданная мелководная зона для безопасного купания детей.
Развлечения и активный отдых
Водные развлечения: прокат гидроциклов, "бананов", катамаранов, парапланы.
Детские площадки и аттракционы: батуты, водные горки на центральном пляже.
Конная ферма: в районе остановки С. Перовской.
Кафе и магазины
Кафе и рестораны: "Терраса", "Три кабана", "Алим", "Для друзей" и другие.
Магазины: небольшие продуктовые лавки, сувенирные лавки, торговые палатки на пляже.
Медицинские услуги: на центральном пляже есть медицинский пункт.
Не упустите шанс приобрести этот дом для проживания вашей дружной семьи.
Звоните , пишите.
Максимально быстро организуем показ.
Агентство недвижимости "ВРЕМЯ"
Экономия Вашего времени - наш приоритет.
Вы можете нас найти по поисковым запросам:
недвижимость, жилье, ипотека, кредит, ипотека Крым, квартира, дом, участок, продажа, покупка, аренда, Севастополь, Крым, Россия, риэлтор, риэлтор Севастополь, риэлтор Крым, услуги риэлтора, агент по недвижимости, продам дом, куплю квартиру, честный риэлтор, ваш риэлтор, надежный риэлтор, агентство недвижимости, качество, результат, скорость, услуги, новостройки, вторичка, инвестиции, инвестиции в недвижимость, продам, куплю, материнский семейный капитал, маткапитал, ипотека ВТБ , ипотека СБЕР, ипотека банк РОССИЯ, военная ипотека, сертификат, квартира у моря, дом у моря, агентство недвижимости время, Время недвижимость, территория безопасных сделок, купить квартиру, купить дом, купить участок, купить недвижимость, оформить ипотеку, семейная ипотека, строительство домов.