181 592 ₽/м²
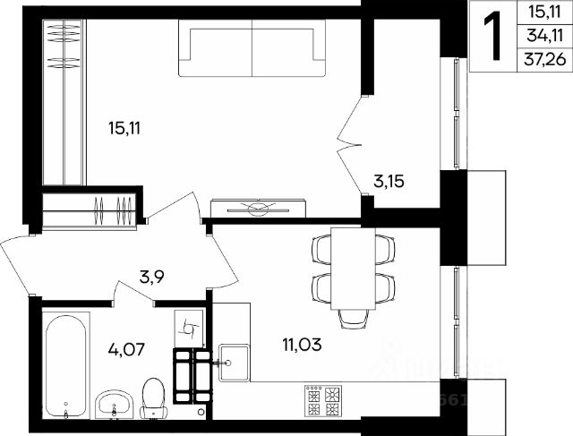
Семейная ипотека, мат.капитал в Первый Взнос ! Класс недвижимости - Бизнес Ввод в эксплуатацию III кв. 2027 СТАРТ ПРОДАЖ! Новый жилой комплекс бизнес-класса в Севастополе! Такого старта в городе не было давно — минимальные цены и высокий уровень проекта! 1 комнатная квартира 34,37 м2 с кухней 12,2 м2! Отличный вариант для инвестиций и сдачи в аренду! Комплекс расположен в развитом районе, рядом с ТЦ Sea Mal! Вся необходимая инфраструктура, удобная транспортная развязка ! До центра 15 минут машиной! Особенности комплекса: Торговая галерея и стрит-ретейл Амфитеатр и кинотеатр под ткрытым небом; Подземный паркинг Современное благоустройство территории и прогулочные зоны Комплекс подходит и для комфортного проживания, и для инвестиций — с высокой перспективой роста стоимости. Звоните или пишите прямо сейчас — расскажу детали, помогу забронировать квартиру по минимальной цене старта продаж!















































































