


315 000 ₽/м²
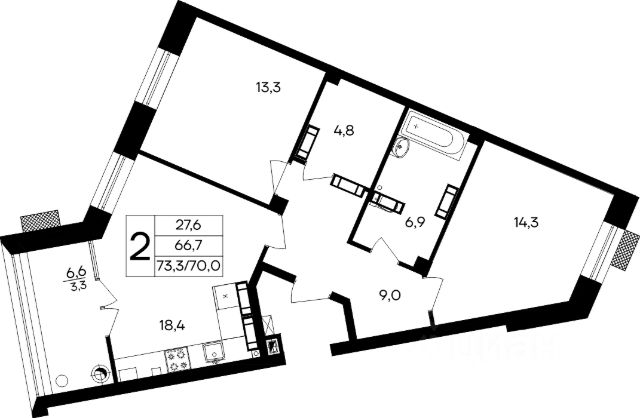
Продаётся 2-комнатная квартира в строящемся доме (Дом 1, литера г), срок сдачи: IV-кв. 2027, общей площадью 57.6 кв.м., на 1 этаже. Квартира в жилом комплексе Дом на Маячной" - это ваша возможность не выбирать между морем и активной жизнью, а брать все лучшее сразу. Жилой комплекс "Дом на Маячной" имеет прекрасное расположение, где близость моря сочетается с развитой инфраструктурой района. Каждый день вы будете дышать морским воздухом, находясь в самом эпицентре событий. Инновационный подход к архитектуре и строительству Использование только современных и качественных материаловИзысканные архитектурные решенияДизайнерские, эргономичные и вентилируемые фасады, которые отлично вписываются в прибрежный ландшафтУдобные планировки: это просторные кухни и гостиные, тихие спальни, большие окнаДля сохранения пространства квартиры предусмотрены отдельные кладовыеДизайнерские холлыДинамичный район Гагаринский район, где располагается жилой комплекс, лучший в городе. Тут есть все для идеального отдыха и комфортной жизни: самый большой зеленый оазис в городе - Парк Победы", он просто создан для неспешных прогулок и утренних пробежекмного небольших уютных скверов и мест для отдыха, где вы сможете безопасно провести время с детьмипрекрасно оборудованные песчаные и галечные пляжи - тут вы сможете найти чем заняться в любое время годакрасивые набережные Парка Победы и Аквамарина созданы для того, чтобы любоваться закатамиТранспорт до ближайшей остановки общественного транспорта - всего несколько минут пешкоммаксимально комфортное передвижение на личном автомобиле - удобные транспортные развязки, новые дороги и места для парковкиоборудованы точки проката электросамокатовИнфраструктура район насыщен кафе, ресторанами, магазинами, аптеками и другими сервисамикрупные торговые центры с кинотеатрами и детскими зонами помогут вам организовать отдых для всей семьиСпа-центры, бассейны, тренажерные залы и стадионы для занятий спортомдетские сады, новые школы, широкий выбор спортивных секций и творческих студий - все в одном районе - вы сможете провести с детьми больше времени, не потратив его на дорогудля активного отдыха рядом есть современный скейт-парк, аквапарк Зурбаган", яхт-клубы, сапсерфинг, организованные велосипедные и беговые дорожки.





















































































