210 108 ₽/м²
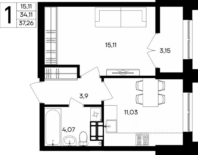
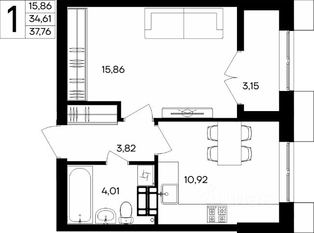
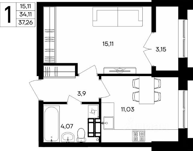
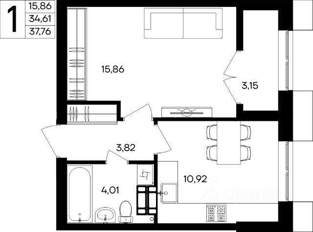
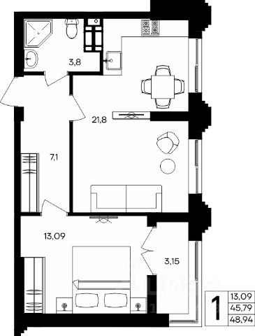
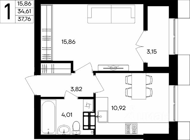
Объект 143. Продаётся квартира в ЖК "Семисчастье" — крупнейшем проекте Севастополя! Расположение: район 7го километра Балаклавского шоссе. Без комиссии для покупателя с полным сопровождением сделки! "Семисчастье" — полноценный район для жизни, развития и отдыха: 54 многоквартирных дома и 41 таунхаус на территории более 70 га, свыше 7 000 квартир комфорткласса. Ключевые преимущества комплекса: • приватные дворы без машин; • соседский центр; • дизайнерские холлы; • сквозные парадные и бесшумные лифты; • ландшафтное озеленение с автополивом; • современные детские площадки; • велодорожки и удобные парковки; • пространства для семейного отдыха; • безбарьерная среда; • кладовые для сезонных вещей; • собственная котельная (энергоэффективность и надёжность); • пешеходный бульвар с зонами отдыха; • просторная городская площадь; • зелёный сквер и места для прогулок; • керамогранитные вентилируемые фасады с архитектурной подсветкой. Инфраструктура на территории: • 4 детских сада и школа; • поликлиника; • торговый центр; • физкультурнооздоровительный комплекс; • коммерческие помещения (аптеки, магазины, кафе). Характеристики квартир: • площадь: от 31,9 до 118 кв. м; • варианты: • застеклённые лоджии во всех квартирах; • открытые террасы на верхних этажах; • двухуровневые квартиры с собственным выходом на первом этаже; • отделка: предчистовая (White Box) — остаётся выполнить ремонт по своему вкусу. Транспортная доступность: • набережная Балаклавы — 10 минут на авто; • центр Севастополя и Новый Херсонес — 20 минут; • ж/д и автовокзалы — 15 минут; • ТЦ "Sea Mall" — 5 минут; • ТЦ "Муссон" — 20 минут. Условия продажи: • ипотека в банках: СБЕР, ВТБ, ГенБанк, АБ Россия; • возможность использования маткапитала; • льготная ипотека, в т. ч. семейная (для семей с двумя детьми до 18 лет); • рассрочка от застройщика; • строительство по 214ФЗ с использованием эскроусчёта; • ввод в эксплуатацию — 3 квартал 2028 года. Что вы получаете: • выбор оптимальной планировки; • онлайнпоказ объекта; • полное сопровождение сделки; • помощь в одобрении ипотеки; • продажа без комиссии и дополнительных переплат! Запишись на ПРОСМОТР и узнай о скидках, С НАМИ ВЫГОДНЕЕ, звони! Пишите в сообщениях, если не смогли дозвониться — я обязательно с вами свяжусь. Не упустите шанс стать жителем масштабного, продуманного района с развитой инфраструктурой и комфортной средой!










































































