


222 707 ₽/м²
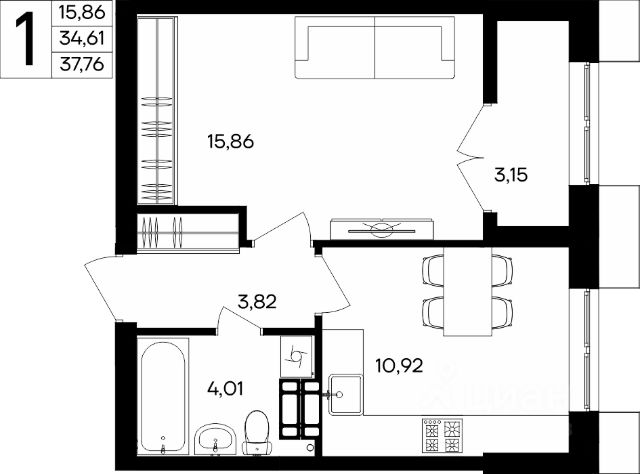
Объект 254. Квартал Видный это комплекс бизнес-класса в динaмичнo pазвивающeмcя paйoне Севacтoполя. Красивое, сбалансированное пространство, эффектные планировочные решения, уникальное благоустройство здесь есть все, что удовлетворит потребности самого требовательного клиента. Жилой комплекс Видный представляет собой монолитно-кирпичные здания. Корпуса размещены так, что внутренний двор защищен от загазованности и шума. Архитектура жилого комплекса отличается величественным и сдержанным стилем. Дизайн зданий выполнен в лаконичном стиле с выгодными видовыми характеристиками, создавая комфортную среду для жизни. Выбор материалов и проектирование зданий создают аутентичную атмосферу, способствующую гармоничному и уютному проживанию. ИНФРАСТРУКТУРА КОМПЛЕКСА: • безбарьерная среда; • креативные детские зоны; • площадки для командных видов спорта, турники, места для занятий йогой; • зона барбекю; • амфитеатр с навесом (театр под открытым небом); • площадки для тихого отдыха; • колясочные; • двор без машин; • собственный стрит-ритейл. ПЛАНИРОВКИ: В комплексе предусмотрены квартиры различных планировок без отделки, а также впечатляющие виды благодаря возвышенному местоположению. Видовые квартиры с террасами на 6-ом этаже, видовые двухуровневые квартиры и квартиры с патио и отдельным входом на 1-ом этаже. Высота потолков в квартирах варьируется от 2,85 до 4,65 метров, что добавляет ощущение простора. КОМФОРТ И БЕЗОПАСНОСТЬ ВАШЕГО АВТО: Обвалованная парковка с возможностью попасть в нее на лифте прямо из квартиры и наземные стоянки. ТРАНСПОРТНАЯ ДОСТУПНОСТЬ: Прямой выезд на транспортную развязку - Балаклавское шоссе, 10 км до центра города и до пляжа. Удобная транспортная доступность обеспечивается близостью автобусной остановки. УСЛОВИЯ ПРОДАЖИ: • Доступна ипотека в банках-партнерах; • Возможность использовать маткапитал; • Возможна покупка в семейную ипотеку 6%; • Доступна рассрочка от застройщика. Ввод в эксплуатацию - 3 кв 2027 года ЖК строится по 214- ФЗ с использованием эскроу-счета. Звоните! Я оперативно отвечу на все ваши вопросы, помогу выбрать наиболее выгодный вариант напрямую от застройщика — без лишних переплат и с возможностью выбора оптимальной планировки, проведу онлайн показ объекта и сопровожу сделку! РАБОТАЕМ БЕЗ КОМИССИИ ДЛЯ ПОКУПАТЕЛЯ!!!













































































