Мы используем куки-файлы. Соглашение об использовании
Только на Циан

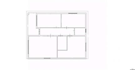
Продается 1-этажный дом, 120 м²

Общая площадь120 м²
Участок4 сот.
Материал домаГазобетонный блок
Этажей в доме1
Продается уютный дом в Севастополе идеальное сочетание комфорта и природы! Расположение: СТ "Каравай". Дом: 120 кв.м на участке 4 сотки с развитой инфраструктурой и своим выходом в лес! Ключевые преимущества: Прочная конструкция: - Один этаж, железобетонный каркас с газобетонными стенами (250мм) и утеплением. - Шатровая кровля с утеплением тепло зимой, прохладно летом. Комфортная планировка: - Три спальни, кухня-студия с панорамным остеклением, совмещенный санузел. - Крытая терраса место для отдыха в любую погоду. - Предчистовая отделка возможность создать интерьер под свой вкус. Все коммуникации: - Теплый водяной пол по всему дому (электрокотел). - Электричество 15 кВт, водоснабжение от ст круглогодичное, автономная канализация. Благоустроенный участок 400 кв.м: - Ограждение, откатные ворота, автоматическая роллета. Отличная локация: - 800 м до асфальта (грунтовая дорога), рядом остановка, магазины, кафе, аптека, парк. - Всего 10 минуты пешком до остановки Документы: в порядке (РФ), возможен торг. Ваш уютный дом в Крыму ждет нового хозяина! Звоните, чтобы узнать детали и записаться на просмотр! Идеально для жизни круглый год или в качестве дачи!
Позвоните автору
Вам ответят на все вопросы

О доме

Площадь

120 м²

Материал дома

Газобетонный блок

Количество этажей

1

Количество спален

3

Об участке

Площадь

4 сот.

Статус участка

Садоводство

Коммуникации и удобства

Санузел

В доме

Канализация

Есть

Водоснабжение

Центральное

Электричество

Есть

Спросите умного помощника
Получите экспертное мнение о жилье

Расположение

Подпишитесь на объявления в этой локации
Мы сообщим, как только поблизости появится что‑нибудь новенькое
Ипотечный калькулятор
  • Базовая
  • Семейная
  • ИТ-ипотека
  • 20%
  • 30%
  • 40%
  • 50%
лет
  • 10 лет
  • 20 лет
  • 30 лет
Загружаем предложения от застройщика и банков
Хотите продать недвижимость?Разместите объявление на ЦианРазместить
11 000 000 ₽
Цена за метр
91 667 ₽/м²
Агентство недвижимости
На Циан
5 лет
Объектов в работе
более 1000
Риелтор
Суперагент