Мы используем куки-файлы. Соглашение об использовании
Только на Циан
Общая площадь130 м²
Участок4 сот.
Материал домаГазобетонный блок
Этажей в доме1
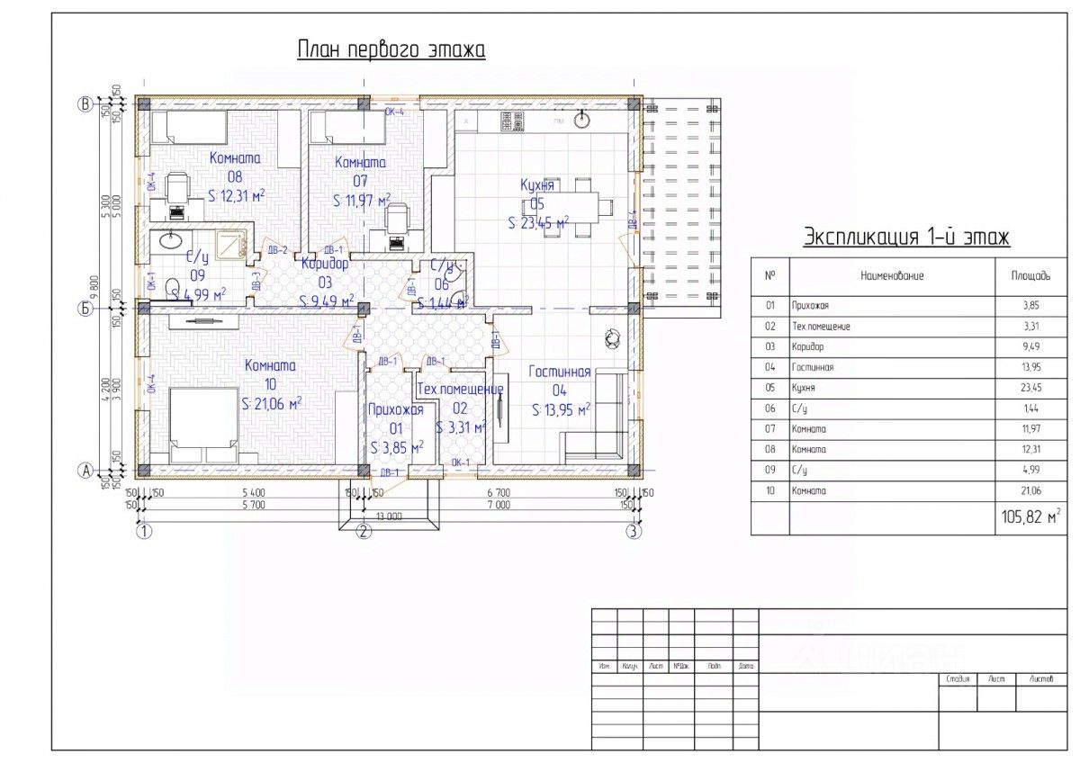
Ваш новый дом в СТ "Рассвет-3": Фундаментальный комфорт для семьи с готовностью "под чистовую" Мы предлагаем не просто "коробку", а тёплый, продуманный до мелочей дом, в котором уже можно жить и параллельно воплощать дизайнерские мечты. Площадь 130 м² идеально зонирована: каждый квадратный метр работает на удобство большой семьи. ЧЕТЫРЕ ПРИЧИНЫ ПОЧЕМУ ЭТОТ ДОМ ДОСТОИН ВАШЕГО ВНИМАНИЯ: 1. КАПИТАЛЬНАЯ КОРОБКА И ТЕПЛО БЕЗ КОМПРОМИССОВ Стены на совесть: Внешние стены из газоблока 300 мм + внутренние несущие 200 мм. Это гарантирует отличную теплоизоляцию зимой и приятную прохладу летом. Умное отопление: По всей площади (кроме жилых комнат) уже залита стяжка теплого водяного пола — ваши ноги всегда будут в тепле. В спальнях установлены современные радиаторы для регулировки индивидуального микроклимата. Газовый котел уже на месте. Светлый фасад: Дом полностью оштукатурен снаружи и оснащен архитектурной фасадной подсветкой. Вечером ваш участок выглядит как иллюстрация к загородной жизни мечты. 2. ЭРГОНОМИЧНАЯ ПЛАНИРОВКА ДЛЯ ЖИЗНИ С ДУШОЙ (130 м²) Внутри выполнен полный цикл "грязных" работ: стены оштукатурены, стяжка залита, коммуникации разведены. Вам остается только покрасить стены и уложить финишное покрытие. Просторная кухня-гостиная (23,45 м²): Настоящее сердце дома с прямым выходом на крытую террасу. Летние завтраки и вечерние посиделки с видом на участок станут вашей любимой традицией. Четыре полноценные спальни: Комнаты 11,97 м², 12,31 м², 21,06 м² и гостиная 13,95 м². Места хватит и взрослым, и детям, и для обустройства кабинета. Хозяйский комфорт: Два вместительных санузла (1,44 и 4,99 м²) — утренних очередей в ванную больше не будет. Плюс отдельное техническое помещение (3,31 м²) для стиральной машины, бойлера и хозинвентаря. 3. УЧАСТОК 4 СОТКИ: ЗАЕЗЖАЙ И ЖИВИ Вам не придется месить грязь и тратить бюджет на обустройство периметра в сезон дождей. Парковка: Перед домом отсыпано щебнем, залита бетонная отмостка. Въездная группа: Установлен надежный забор и откатные ворота с электроприводом — заезжаете на участок, не выходя из машины. Ландшафт: Участок полностью окультурен и разработан, готов к посадке растений. 4. КРУГЛОГОДИЧНЫЕ КОММУНИКАЦИИ И ИДЕАЛЬНЫЙ ПОДЪЕЗД Вода: Круглогодичная подача от ст. — никаких перебоев с хлорированной водой в бочках. Свет и Безопасность: Подключено электричество от Севэнерго (официальный договор) и установлена система видеонаблюдения. Канализация: Современный септик уже смонтирован и функционирует. Дороги: Почти 100% асфальт до самого дома. До остановки общественного транспорта всего 13 минут прогулочным шагом. УДОБНЫЕ УСЛОВИЯ ПОКУПКИ Документы готовы к сделке. Рассматриваем ВСЕ ВИДЫ РАСЧЕТА: Наличная оплата (предпочтительно). ВОЕННАЯ и СЕМЕЙНАЯ ИПОТЕКА (объект подходит под требования банков). Не упустите шанс въехать в дом, где не нужно переделывать за строителями и тратить миллион на ввод коммуникаций. Здесь уже есть всё для старта вашей новой загородной истории. Звоните прямо сейчас, чтобы договориться о личном показе!
Позвоните автору
Вам ответят на все вопросы

О доме

Площадь

130 м²

Материал дома

Газобетонный блок

Количество этажей

1

Количество спален

4

Об участке

Площадь

4 сот.

Статус участка

Садоводство

Коммуникации и удобства

Канализация

Есть

Водоснабжение

Центральное

Электричество

Есть

Спросите умного помощника
Получите экспертное мнение о жилье

Расположение

Подпишитесь на объявления в этой локации
Мы сообщим, как только поблизости появится что‑нибудь новенькое
Ипотечный калькулятор
  • Базовая
  • Семейная
  • ИТ-ипотека
  • 20%
  • 30%
  • 40%
  • 50%
лет
  • 10 лет
  • 20 лет
  • 30 лет
Загружаем предложения от застройщика и банков
Хотите продать недвижимость?Разместите объявление на ЦианРазместить
12 500 000 ₽
Цена за метр
96 154 ₽/м²
Агентство недвижимости
На Циан
5 лет
Объектов в работе
более 1000
Риелтор
Суперагент