Мы используем куки-файлы. Соглашение об использовании
Только на Циан

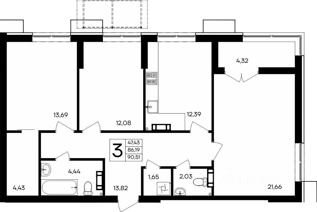
Продается 3-комн. квартира, 90,51 м²

Общая площадь90,51 м²
Этаж2 из 9
Год сдачи2028
ДомНе сдан
ОтделкаНет информации
Продаётся 3-комнатная квартира в строящемся доме (Дом 4), срок сдачи: II-кв. 2028, общей площадью 90.51 кв.м., на 2 этаже. "Семисчастье" - город счастья. Счастье - это когда дом наполнен детским смехом. Когда уютные вечера собирают всю семью за одним столом, а каждый день приносит радость. Это простые, но важные моменты, которые запоминаются на всю жизнь. "Семисчастье" - это место, где каждое мгновение имеет значение. Первый проект подобного масштаба в Севастополе: Амбициозный проект комплексного развития территории в районе 7 километра Балаклавского шоссе. Это район, вдохновляющий своим размахом. 70+ гектаров территории7 000+ квартир комфорт-класса54 многоквартирных дома и 41 таунхаус3 жилых квартала

О квартире

Тип жилья

Новостройка

Общая площадь

90,51 м²

Высота потолков

2,7 м

Отделка

Нет информации

О доме

Количество лифтов

6 пассажирских

Тип дома

Монолитно-кирпичный

Пандус

Есть

Понравилась квартира — узнайте о ней больше

Застройщик ответит на все вопросы

Отделка в доме

  • Предчистовая
  • Без отделки

Варианты отделки в ЖК

  • Предчистовая
  • Без отделки
  • Чистовая
Похоже на то, что вы ищете?

Акции в ЖК «Семисчастье»

Узнайте про персональные условия и дополнительные скидки при покупке квартиры у застройщика
Ипотечный калькулятор
  • Базовая
  • Семейная
  • ИТ-ипотека
  • 20%
  • 30%
  • 40%
  • 50%
лет
  • 10 лет
  • 20 лет
  • 30 лет
Загружаем предложения от застройщика и банков

Расположение

Корпус проверен наш.дом.рф
Обновлено 21 апреля 2026
  • Нет в реестре проблемных объектов
  • Застройщик не банкрот
  • Есть эскроу счёт
  • Актуальные фото стройки

Ещё квартиры в жилом комплексе

263 квартиры в продаже · Сдача в 2—3 кв. 2028
Агентство недвижимости
Магазин новостроек
  • 5 лет 2 месяца на Циане
  • 17 196 900 ₽
    Цена за метр
    190 000 ₽/м²
    Условия сделки
    долевое участие (214-ФЗ)
    Агентство недвижимости
    Магазин новостроек