


240 000 ₽/м²
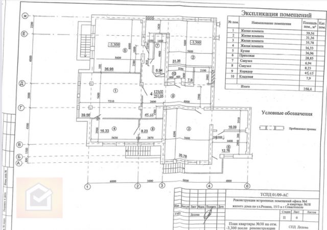
Продается объект на "Пляже Омега"! 4 комнаты с изящным дизайном в средиземноморском стиле, просторная кухня-столовая, вместительная техническо-хозяйственная зона. Общая площадь составляет 250 кв. м. Каждая комната полностью автономна: имеет свою дверь с электронным замком, санузел, бойлер, - и может быть использована как отдельный гостиничный номер. Апартаменты расположены на 3 этаже 4-этажного дома, который находится всего в 20 метрах от пляжа севастопольской бухты Омега. В доме установлен бесшумный лифт. Все помещения обставлены мебелью от европейских производителей, а также сделанной на заказ под индивидуальный дизайн проект квартиры. Каждая комната снабжена холодильником, кондиционером и LCD-телевизором с диагональю 47 или 55 дюймов. Кухня оборудована инверторной варочной поверхностью, микроволновой печью, электрическим духовым шкафом, вместительным холодильником и посудомоечной машиной. А Wi-Fi-доступ в Интернет позволит всегда оставаться на связи со всем миром. Элитная мебель от брендов Zijlstra, Blest и Santarossa создает в каждой комнате неповторимую атмосферу комфорта и элегантности. Кухня и некоторые элементы интерьера проектировались на заказ по эскизам профессионального дизайнера с использованием материалов австрийской фирмы Egger. Качественная сантехника от торговых марок Roca akira, Hansgrohe, Kolpasan и "Аква Родос" установлена во всех пяти санузлах. В апартаментах в вашем распоряжении будет одна большая чугунная ванная и четыре душевых кабины. И их использование доставит Вам, в том числе, и эстетическое наслаждение. Кухня-столовая оборудована инверторной варочной поверхностью, микроволновой печью, электрическим духовым шкафом, вместительным холодильником и посудомоечной машиной. А элегантный стол на шесть персон легко позволит организовать трапезу для большой семьи или дружной компании. Автономность систем жизнеобеспечения продиктована стремлением к максимально возможной независимости от коммунальных служб. Вам не придется ждать начала отопительного сезона центральное отопление продублировано сплит-системами и теплыми полами. Бойлеры, отдельные для каждого санузла, обеспечат круглосуточное поступление горячей воды. А наличие большого водного резервуара позволит им всегда работать бесперебойно. Безопасность объекта контролируется несколькими камерами наблюдения, охранной и пожарной сигнализацией. Электронные замки на входной двери в апартаменты и каждую из комнат позволят Вам через Интернет следить за их состоянием и изменять кодовую комбинацию. Ресторан на первом этаже здания позволит Вам использовать кухню-столовую исключительно как зону отдыха и приятного общения с близкими людьми. Парковка перед домом обеспечит Вам быстрый доступ к своему автомобилю, а также позволит держать его под постоянным присмотром. Пляж - не только место летнего досуга с большим количеством водных развлечений и основная причина купить апартаменты в Севастополе. Он также является гарантией, что очередная новостройка не перекроет Вам вид на море с ва Продается 5-комнатная квартира в Севастополе.
















































































